실험 목적
광탄성 실험의 원리와 개념을 이해하고 광탄성 감도 측정법, 광탄성 실험에 의한 응력집중계수 측정법, 그리고 광탄성 실험에 의한 구조물의 모델 해석 방법 등을 습득한다.
실험 이론 및 원리
1. 광탄성 응력해석의 원리
투명한 탄성체가 외력을 받아 그 내부의 임의의 점에 σ1, σ2의 주응력이 발생할 때 이 점을 지나는 빛에 대하여 모델이 일시적으로 이중 굴절성을 나타낸다. 일시적 이중굴절 현상에 의해 빛은 두 개의 광파로 갈라져서 위상차가 발생한다.
이러한 위상차의 크기가 주응력차에 비례하는 관계가 성립한다. 광탄성 원리를 이용하여 얻은 등색선 무늬와 등경선 무늬로서 어떤 구조물이나 모델의 응력상태를 분석하는 것을 광탄성 응력해석법이라 한다.
일반적으로 광탄성 실험장치는 크게 그림1의 (가)투과형 광탄성 실험장치와 (나)반사형 광탄성 실험장치로 나눌 수 있다. 투과형 광탄성 실험장치는 주로 모델시편의 응력해석에, 반사형 광탄성 실험장치는 실제 구조물의 응력해석에 사용된다.
(가) 투과형 광탄성 실험장치 | (나) 반사형 광탄성 실험장치 |
그림 1 광탄성 실험장치
2. 광응력 법칙 및 광탄성 감도
탄성체 내에서 굴절율의 변화는 주응력에 비례한다는 이론이 1853년 Maxell에 의해 알려졌으며 식(1)과 같이 표현되어진다.
| (1) |
δ/2π는 무늬차수(N)로 표현되어지므로
| (2) |
이를 광응력법칙(Stress-Optic law)이라하며, α를 광탄성 감도라고 하고 특정한 광파장
와 모델의 광학적 특성 c에 관계되는 재료의 물성치이다. 근래에 광탄성 재료로 주로 이용되고 있는 에폭시의 감도는 α=0.7~1㎜/㎏ 정도이다.
3. 응력집중 계수
일반적으로 응력집중 계수 αk는 식(3)으로 정의되어 진다.
| (3) |
σmax는 노치 혹은 불연속 부근에 발생되는 최대응력이고 형상이 간단한 경우에는 탄성학적 계산으로 구할 수 있지만 형상이 복잡한 것은 계산이 곤란하기 때문에 광탄성 실험이 유용하게 사용되어 질 수 있다. 중앙 원공을 가진 평판의 응력집중 문제에 광응력 법칙과 식(3)을 이용하면 응력집중 계수는
여기서,
| |||
여기서,
|
W는 가한 하중, b는 판의 폭, t는 판의 두께, d는 원공의 지름을 나타낸다.
실험 기구 및 장치
1. 실험 재료
본 실험에 사용될 광탄성 실험장치는 그림1의 (가)투과형 광탄성 실험 장치이며, 구성은 그림2와 같다.
![]() |
| 그림 2 투과형 광탄성 실험장치의 구성 |
실험 방법
1. 광탄성 감도의 측정
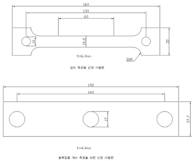
1) 에폭시 판재를 이용하여 광탄성 감도 측정용 인장 시편을 그림3과 같이 가공한다.
2) 가공된 시편을 하중장치에 장착하고, 무늬차수(N)가 정수 차수로 증가할 때마다 그 때의 하중을 읽어 기록한다.
3) 탄성한도를 넘지 않는 범위까지 하중을 증가시키며, 이와 같은 방법을 3회 반복한다.
4) 식(2)를 이용하여 광탄성 감도를 계산하고, 평균치를 구한다.
2. 응력집중계수 측정
1) 에폭시 판재를 이용하여 그림4와 같은 중앙에 원공이 있는 시편을 가공한다.
2) 가공된 시편을 하중장치에 장착하고, 하중을 증가시키면서 적당한 하중에서 CCD 카메라를 이용하여 등색선 무늬를 촬영한다.
3) 최고차 등색선 무늬를 찾아내고, 식(4), (5)를 이용하여 응력집중 계수를 구한다.
4) 위와 같은 실험을 3회 이상 반복하여 평균치를 구한다.
5) 등색선 무늬 사진상에 무늬차수를 표시하고 응력분포도를 작성한다.
![]() |
| 그림 3 시편(에폭시)의 실측 |
실험 결과
1. 광탄성 감도의 측정
무늬차수[N] | 1차 | |
하중[㎏] | 감도 α[㎜/㎏] | |
1 | 18.45 | 0.6666 |
2 | 35.474 | 0.6935 |
3 | 52.294 | 0.7056 |
4 | 68.909 | 0.7140 |
5 | 86.850 | 0.7081 |
6 | 103.67 | 0.7119 |
| 평균a[㎜/kg] | 0.69995 |
t[㎜] | 6.4 | |
d[㎜] | 12.3 | |
계산식 : α = b/P×N = 12.3㎜/18.451㎏×1 = 0.6666(㎜/㎏)
그래프를 봤을 때 하중과 무늬차수가 비례하는 것 을 볼 수 있습니다.
하중이 증가하게 되면 그만큼 시편에 대해 변형이 많이 일어나게 된다고도 볼 수 있습니다.
기울기 : N/P = α/b
2. 응력집중 계수의 측정
하중[㎏] | 최고차수[Nmax] | 응력집중계수 | |
ak | a'k | ||
40.775 | 2 | 1.625762 | 2.803038 |
81.549 | 4 | 1.625782 | 2.803072 |
122.32 | 6 | 1.625829 | 2.803153 |
163.10 | 8 | 1.625762 | 2.803038 |
| 집중계수평균 | 1.625783 | 2.803075 |
t[㎜] | 4.3 | d[㎜] | 16.8 |
계산식
ak = ((40-16.8)×2)/(40.775×0.69995) = 1.625762(㎜/㎏) | a'k = (40×2)/(40.775×0.69995) = 2.803038(㎜/㎏) |
토의 사항
1. 실험 고찰
본 실험의 목적은 하중을 받는 탄성체 내에서 생기는 응력의 분포상태를 관찰하고, 하중이 변화함에 따라 어떠한 변화가 일어나는 지 알아보는 실험이다. 실험실에 갔을땐 이때까지 실험과는 사뭇 다른 고가의 실험장비여서 조금 기대 되었다.
기본적으로 먼저 광탄성이란 유리, 에폭시 수지와 같은 투명한 탄성체의 판으로 모형을 만들어, 이에 외력을 가해서 판에 수직으로 편광을 통과시키면 줄무늬가 나타나는데 이 현상을 말하는 것이다. 실험당시 하중의 변화를 주며 실험하고 카메라로 관찰하게 되었는데 실험결과는 하중이 증가함에 따라 감도도 미세하게 증가하였다. 여기서 감도란 물체에 어떠한 자극·작용에 대해 반응하는 예민성의 정도를 말하는 것인데, 이 감도가 좋을수록 더욱 뚜렷한 값을 보이게 되는 것이 아닐까 하는 생각이 들었다.
실험은 워낙 고가의 장비인것과 더불어 전문가의 손길이 필요한 장비라 하중의 변화를 줄때마다 카메라를 통해서 확인하였는데 변화는 알겠지만, 거기에 따른 줄무늬 수를 정확히 읽기는 매우 어려웠다.
예전에는 모니터로 확인하였기에 오차없이 읽을 수 있었는데, 지금은 사람 눈으로 확인할 수 밖에 없는 상황이라 오차가 클 수 밖에 없다고 하였다. 그리고 아마 장비가 조금 오래되어서 하중을 계속 받았었기 때문에 소성변형이나 밀도가 달라져서 실험의 오차가 어쩔 수 없이 생겼다고 생각할 수 있다.
그리고 실험당시 일정한 하중이상 주지 않고 실험을 하게 되었는데 그 이유는 너무 큰 하중을 주게 된다면 파손이 되어서 다시 재료를 만들어야 하는 번거로움이 있기 때문에 적당한 하중을 생각하여 거기에 맞게 실험을 하게 된다는 것이다. 실험을 통하여, 재료마다 고유 물성치가 있기 때문에 같은 응력을 주더라도 재료마다 무늬차수가 다르며, 자극에 대한 반응에 따라 재료의 감도가 좋을수록 뚜렷한 값을 나타내는 것도 알게 되었다.





0 댓글